Montážní deska 3 moduly Vnější rozměry: 384 x 207 x 51 mm
Skříň pro motorový spouštěč IP41 Schneider Electric GV2MC01
417 Kč
Hladinový spínač Elko EP HRH-5/UNI
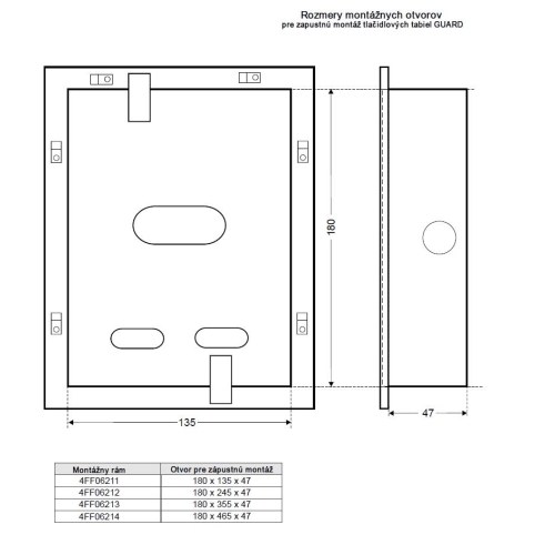
903 KčMontážní deska TESLA GUARD 4FF 062 11
1 265 Kč
Montážní deska TESLA GUARD 4. FF 062 13 nabízí spolehlivou ochranu proti přepětí a přehřátí. Díky svým 3 modulům lze snadno napojit a konfigurovat.





